Toimistoja ja kaupunkilaisten yhteisiä tiloja
Helsingin Kalasatamaan heinäkuun lopulla valmistunut Kaupunkiympäristötalo on 40 000 m² laajuinen kokonaisuus, joka tuo aikaisemmin eri puolilla kaupunkia sijainneet kaupunkiympäristön toimialan palvelut yhteen paikkaan. Seitsemänkerroksinen, 1500 työntekijän uusi työpaikka noudattelee julkisivultaan Kalasataman teollista, tiilirakennusvoittoista ilmettä. Muuratut holvikaaret avaavat Kaupunkiympäristötalon ensimmäisen kerroksen kaikille avoimet messu- ja ravintolatilat myös ohikulkijoille.
Holvikaariteema näyttäytyy myös ensimmäisen kerroksen aulassa, jonka upea kaari on verhoiltu Puucompin nanorei'itetyillä tammiviilulevyillä. Myös aulan muissa sisäverhouksissa on käytetty Puucompin puuviilulevyjä.
Upean kokonaisuuden on suunnitellut Lahdelma & Mahlamäki architects.
Sisäverhouksissa detaljeja ja räätälöityä työtä
Kaupunkiympäristötalon kohde oli projekti, jossa oli monia erilaisia detaljeja ja tuotteita. Upeaan aulatilaan toimitimme tammiviilupintaa sekä sileänä että nanorei'itettynä akustiikkalevyinä. Levyillä verhoiltiin niin seinät, pilarit, kehäpuut kuin portaikotkin. Muihin seinäpintoihin tuotettiin myös mielenkiintoisia metallilaminaattipintoja sekä maalattuja levyjä.

Julkisivun holvikaariteemaa on jatkettu myös Kaupunkiympäristötalon aulan sisäverhouksissa.
Projektin onnistumiseen vaikutetaan jo projektin alkuvaiheessa. "Teimme asiakkaalle mallilevyt sekä pinnasta että pintakäsittelystä, jotka hyväksytettiin asiakaalla. Näin kaikilla oli sama käsitys toivotusta lopputuloksesta. Sen jälkeen materiaalien hankinta tehtiin hyväksytyn viilupinnan mukaan ja erikseen vain tätä projektia varten. Kävimme myös neuvotteluja yhteispelillä, jotta myös asennus olisi mahdollisimman sujuvaa", kertoo Puucompin Jari Rajamäki.
Projektin rakentaja, Skanska, hyödynsi prosessissa uudenlaista tietomallintamista. Puucompissa sen huomasi parhaiten siitä, että sekä havainnekuvat että detaljit olivat samassa piirustuksessa, Tämä auttoi havainnoimaan kokonaisuutta paremmin kuin olisi pelkistä detaljikuvista saatu irti.

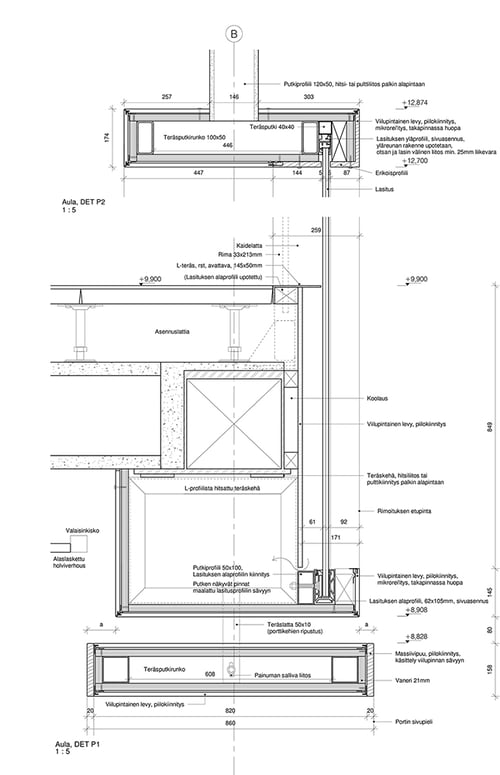
Ote työpiirroksesta - Kaupunkiympäristötalo / Lahdelma & Mahlamäki architects
Huomaamaton nanorei'itys (akustiikkaperforointi) parantaa tilan akustiikkaa
Tammiviiluilla verhoillun suuren kaaren viilut on perforoitu nanorei'illä. R005 Nano -tyypin perforointi parantaa tilan akustiikkaa huomaamattomasti, sillä perforointi näkyy levyjen pinnassa vain hyvin läheltä katsottuna. Perforointireikien halkaisija on vain 0,5 mm. Näiden pienten reikäkokojen toteutus vaatii vahvaa ammattitaitoa, sillä pintakäsittelyissä ja liimauksissa reikien pitää pysyä avoimina. Ja näitä reikiä on nanorei'in akustoidussa levyssä jopa 28 000 kpl - siis yhdessä neliömetrissä! Ja levyjen taustalevyissä tulee puolestaan olla toimivan akustiikan takia pintaviiluja selvästi suuremmat rei'ät. Näiden pintojen yhteensovittaminen on ammattilaisten työtä.
Haastava kaarielementti vaati aikaa ja resursseja
Puucompin levyt Kaupunkiympäristötaloon asensi Inlook. Muuttuvasäteinen kaari jiiriliitoksineen oli erittäin vaativa toteutettava. Kaaret toteutettiin yksilöllisesti piirustusten ja mittojen mukaan. Jokainen levy oli erilainen. Käytettävien puuviilujen mitoittaminen kohteeseen ja levyjen toteutus sekä niiden asennus vaativat aikaa ja resursseja niin valmistajalta kuin asentajaltakin. Kaaria ei enää muokattu työmaalla lainkaan vaan ne asennettiin paikalleen tehtaalla valmistetuin muodoin.

Kaunis kaari koostuu useista erikokoisista nanorei'in perforoiduista tammiviilulevyistä.

Ote työpiirustuksesta - Kaupunkiympäristötalo / Lahdelma & Mahlamäki architects
Kaarielementin haastavuudesta huolimatta koko Kaupunkiympäristötalon sisäverhoukset onnistuivat erinomaisesti.
Minulle on kerrottu että olemme onnistuneet hyvin ja että pinnoista tuli kauniita - ja sellaisia kuin oli toivottukin. Voiko enempää pyytää?"
- Jari Rajamäki
Ympäristötehokkuus ei asettanut uusia vaatimuksia Puucompille
Kaupunkiympäristötalo on moderni, ympäristötehokas rakennus. Kaupunkiympäristötalon hankkeessa on noudatettu lähes nollaenergiarakentamista, eli rakennuksen energiatehokkuus on erittäin korkea ja hienoinen energiantarve täytetään uusiutuvalla energialla. Kaupunkiympäristötalossa energiantarve täytetään katolle asennetuilla aurinkopaneeleilla sekä lähellä tuotetulla, uusiutuvalla energialla. Jo pelkkien aurinkopaneelien voimalla saadaan esimerkiksi valaistukseen tarvittu energia. Aurinkopaneelien lisäksi suurinta osaa rakennuksen vesikatosta peittää viherkatto.
Energiatehokas kohde tullaan sertifioimaan BREEAM-ympäristöluokituksen mukaisesti. Tavoitteena on päästä vähintään tasolle Very Good.
Puucompin tuotteiden osalta nämä tavoitteet eivät tuoneet esiin mitään erityisvaatimuksia. "Valmistuksessa on jo otettu ympäristöasioita huomioon ihan jokapäiväisessä toiminnassamme", toteaa Rajamäki. "Lisäksi tuotteemme on mm. M1-luokiteltu. Puuviilun käyttö on lisäksi ekologinen valinta, sillä yhdestä puusta saadaan jopa 800 m2 puuviilua."
Entä lopputulos? "Minulle on kerrottu että olemme onnistuneet hyvin ja että pinnoista tuli kauniita - ja sellaisia kuin oli toivottukin. Voiko enempää pyytää?", toteaa Rajamäki.

.jpg?width=472&name=Puucomp_3D_Nano_avattu%20(1).jpg)